First Loader First Loader

4 camere cu 2 bai in bloc reabilitat linga Punctele Cardinale

4 camere cu 2 bai in bloc reabilitat linga Punctele Cardinale


  • Pret Vanzare: 195,000 EUR
  • Zona: Central, Timisoara
  • ID Oferta: 11255
  • Actualizat in: 6.4.2026
  • Afisari: 50
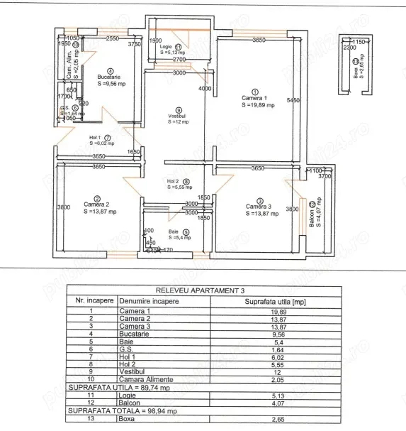
  • Suprafata utila: 90 m2
  • Numar camere: 4
  • Compartimentare: semidecomandat
  • Etaj: parter/10

Descriere oferta apartament

Va propunem spre vanzare apartament cu 4 camere, semidecomandat, confort 1, situat in cartierul Central, zona , intr-un imobil construit in anul 1974 , disponibil la etajul parter din 10, cu o suprafata de 94 mp. Imobilul este situat in apropiere de stație de autobuz, școală, supermarket ID intern: 11255.

Caracteristici

  • Zona: Central
  • Suprafata utila: 90 mp
  • Confort: 1
  • semidecomandat
  • Etaj: parter/10
  • Nr. etaje imobil: 10
  • Numar Bai: 2
  • Numar Balcoane: 1
  • Reper:
  • Tip Imobil: Bloc
  • Stare apartament:
  • Numar Camere: 4
  • An Constructie: 1974
  • Structura: Monolit
  • Destinatie: Locuinta

Caracteristici generale

  • Acces: Fata
  • Destinatie: Locuinta
  • Ferestre: PVC
  • Geam baie: Da
  • Incalzire: Centrala proprie
  • Interfon: Da
  • Izolatii termice: Exterior
  • Servicii: Administrare
  • Stadiu Finisare: Finalizat
  • Tip Bloc: Bloc
  • Tip Structura Bloc: Monolit
  • Vecinatati Spatii: Autobuz Banca Supermarket Piata Hotel Central Parc Mall Centru universitar Scoala/gradinita

Contacteaza agentul



Oferte similare
Decomandat, renovat complet nou
Decomandat, renovat complet nou
146.000EUR
95 m2 4 camere